Isotop®圧縮ばね
圧縮ばねを防振エレメントとして使用することは多くの利点をもたらし、防振デバイスの性能と信頼性を大幅に向上させることができます。圧縮ばねは固有振動数が低いため、優れた絶縁特性を持ち、特にファンや換気扇のような低周波の被害振動を示す機械に適しています。ばね要素は振動を減衰させ、垂直方向の衝撃を吸収するように設計されています。そのため、自動車産業、機械工学、建築分野で広く使用されています。
当社のIsotop®圧縮ばねは印象的です:
- 低い固有振動数により、最高レベルの防振を実現
- 産業環境での加振周波数が低い用途に最適
- 1つの製品レンジ内で全高が一定しているため、最大限の柔軟性を提供
あらゆる用途に最適なIsotop®圧縮ばね
Isotop® SD
Isotop® MSN
Isotop® SD BL
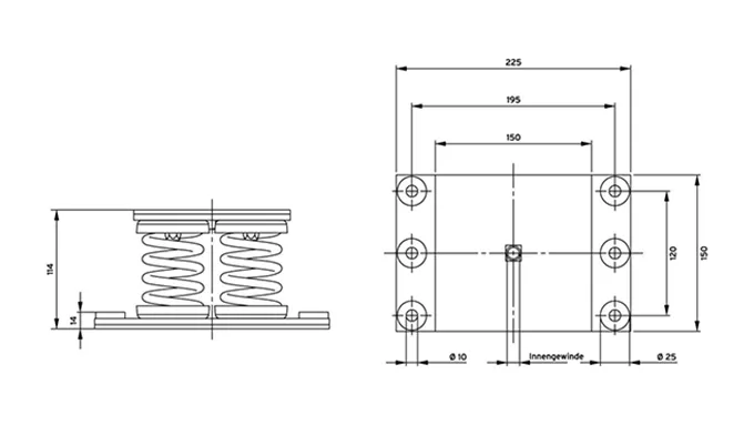
- 690 kg~4730 kgの負荷範囲に対応するスプリングスチールアイソレータ製ブロック要素
- 全高114 mm
- 固有振動数3.4 Hz以上
- 2または4個のIsotop® SDバネ要素の組み合わせ
- カソード浸漬塗装による高い耐食性と粉体塗装の圧力分配プレート
Isotop® MSN BL
- 117 kg~800 kgの負荷範囲に対応するスチールスプリングアイソレータ製ブロックエレメント
- 全高75 mm
- 固有振動数3.5 Hz以上
- 4個のIsotop® MSNの組み合わせ
- カソード浸漬塗装による高い耐食性と粉体塗装の圧力分配プレート
EquipCalc
お客様の用途に最適な圧縮ばねを見つける
EquipCalcは、お客様のプロジェクトに最適な製品選択を瞬時に算出します。 重量とベアリングポイントの数を入力すると、最初の結果が表示されます。あるいは、重心が偏心しているデバイスも特定できます。また、統合されているEquipCalc Module Plannerは、最大2つのレベルで複数のモジュールから構成されるシステムをモデル化し、それぞれに最適なIsotop®製品を特定することができます。
今すぐ無料登録してお試しください:
Isotop®圧縮ばね用アクセサリー
Isotop® SD用Isotop® NV
- Isotop® SD用高さ調節
- 長さ70 mm
- 直径M10
- ネジリーチ20 mm
Isotop® MSN用Isotop® NV
- Isotop® MSN用高さ調節
- 長さ60 mm
- 直径M8
- ネジリーチ14 mm
Isotop® SD用Footplate Isotop® FP/K
- ダンパーエレメント付きフットプレート
- 電気亜鉛メッキまたはカソード浸漬塗装による高い耐食性
- 全高21 mm
Isotop® SD用Footplate Isotop® FP
- フットプレート
- 電気亜鉛メッキまたはカソード浸漬塗装による高い耐食性
- 全高12 mm
Isotop® SD-BL 2およびIsotop® SD-BL4用スペーサーベースIsotop® DT
- ポリエチレン製スペーサーベース
- グリコールなどの化学薬品に対する高い耐性
- Sylomer®製滑り止めマット
お問い合わせ
{"us":[96,118,85,314],"ca":[96,85],"gb":[96,8,305],"ie":[96,8,305],"at":[308,8,309],"si":[308,8,11,309],"hr":[308,8,309],"hu":[308,8,309],"ba":[308,309],"rs":[308,309],"me":[308,309],"al":[308,309],"mk":[308,309],"ro":[308,309],"es":[308,309,262,304],"pt":[308,309,262,304],"ch":[8,140],"li":[8,140],"de":[284,296,209,317,145],"kr":[151],"tw":[151],"nz":[151],"id":[151],"ph":[151],"bn":[151],"bd":[151],"my":[151],"sg":[151],"vn":[151],"hk":[151],"th":[151],"kh":[151],"mm":[151],"it":[291,140],"in":[276],"tr":[11,140],"br":[43],"se":[266],"dk":[266],"no":[266],"fi":[266],"tl":[39],"pg":[39],"la":[39],"bt":[39],"np":[39],"il":[40],"pl":[17],"gr":[140],"ru":[24],"ua":[24],"by":[24],"ee":[24],"lv":[24],"lt":[24],"md":[24],"bg":[24],"ge":[24],"az":[24],"am":[24],"tm":[24],"uz":[24],"kg":[24],"tj":[24],"kz":[24],"cz":[24],"sk":[24],"qa":[159],"ae":[159],"sa":[159],"eg":[159],"om":[159],"kw":[159],"iq":[159],"ir":[159],"sy":[159],"lb":[159],"dz":[159],"ma":[159],"tn":[159],"ly":[159],"jo":[159],"ve":[171],"co":[171],"ec":[171],"pe":[171],"cl":[171],"ar":[171],"bo":[171],"py":[171],"uy":[171],"jp":[34,125],"cn":[6],"fr":[304]}